Дом 300 м² на участке 20 сот.

23 000 000руб.

Характеристики

  • Площадь участка: 20 сот.
  • Площадь дома: 300 м²
  • Этажей в доме: 2

Описание

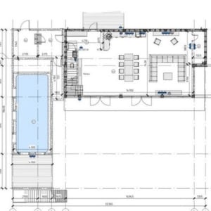
дом 300 м2 на участке больше 20 соток с видом на море. 

свет, вода на участке. газ в процессе 

по проекту есть бассейн 

на первом этаже большой холл 

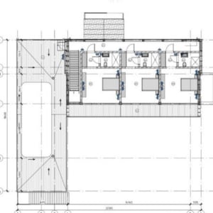
второй этаж состоит из 3х комнат, в каждой санузел

Адрес

Республика Крым, Керчь, Рыбацкий переулок


Сеть городских порталов: Купить квартиру в Видном